Kitchen Plan Templates

Browse kitchen plan templates and examples you can make with SmartDraw.

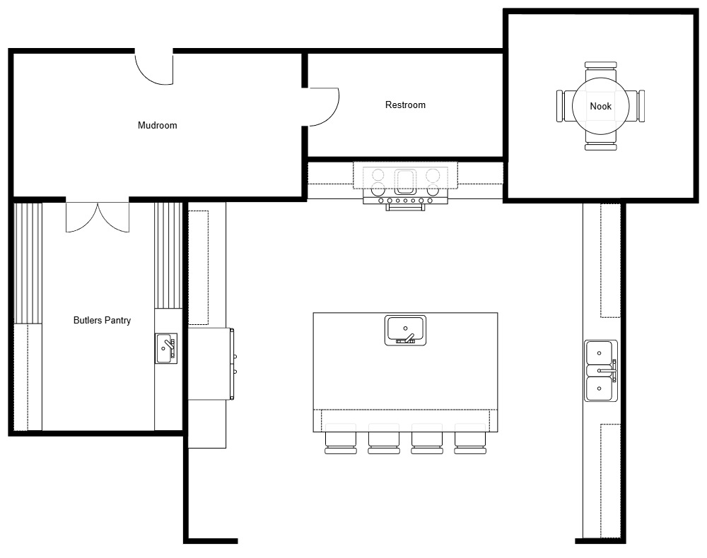
Kitchen Renovation Plan with Butler's Pantry and Mudroom

This is a floor plan for a modern kitchen after renovations. It features a spacious layout with island seating for four, a breakfast nook, a convenient butler's pantry with wet bar for entertaining prep, and a mudroom with an adjacent restroom. Everything in this layout is about practical family living while also being ready to entertain guests. You can edit this template easily in SmartDraw and adjust the layout and the configurations of different zones. Create your own kitchen design for renovations and remodeling projects.